VENDITA APPARTAMENTO - CENTRO LIVORNO
Centro
codice riferimento: Rif.4521
Condividi
Condividi
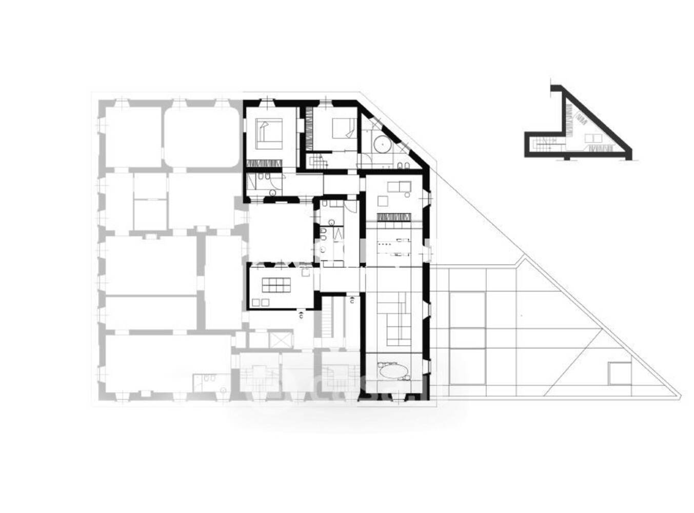
RIF. 4521 CAIROLI CON TERRAZZA In prestigioso palazzo d’epoca completamente restaurato e dotato di ascensore, proponiamo in vendita un elegante immobile di rappresentanza di circa 300 mq, completamente da ristrutturare situato al secondo piano e impreziosito da una splendida terrazza a livello. La proprietà si compone di un ampio ingresso di rappresentanza, salone triplo con accesso diretto alla meravigliosa terrazza, cucina abitabile, 3 CAMERE da letto, 3 bagni, tutti finestrati e ripostiglio con zona lavanderia. Le altezze interne consentono la possibilità di realizzare soppalchi in più ambienti. Attualmente l’immobile è accatastato come ufficio, ma risulta facilmente convertibile in civile abitazione, rendendolo ideale sia come residenza di pregio sia come sede professionale di alto livello.Presso i nostri uffici sono disponibili tavole progettuali e rendering realizzati da professionisti del settore.Classe energetica: in fase di definizione. La richiesta è di euro 320.000
2 o più bagni, 3 o più camere, Ascensore, Cucina, Da ristrutturare, Piscina, Sala, Studio, Terrazza abitabile.
| Piano: | SECONDO |
| Superficie: | 276 mq |
| Classe: | G |
| Condominio: | € 100,00 |
| Prezzo: | € 320.000,00 |
Torna alla ricerca
Richiedi informazioni