VENDITA APPARTAMENTO - BANDITELLA LIVORNO

                                                           
Banditella
codice riferimento: Rif.4483

  Condividi   Condividi

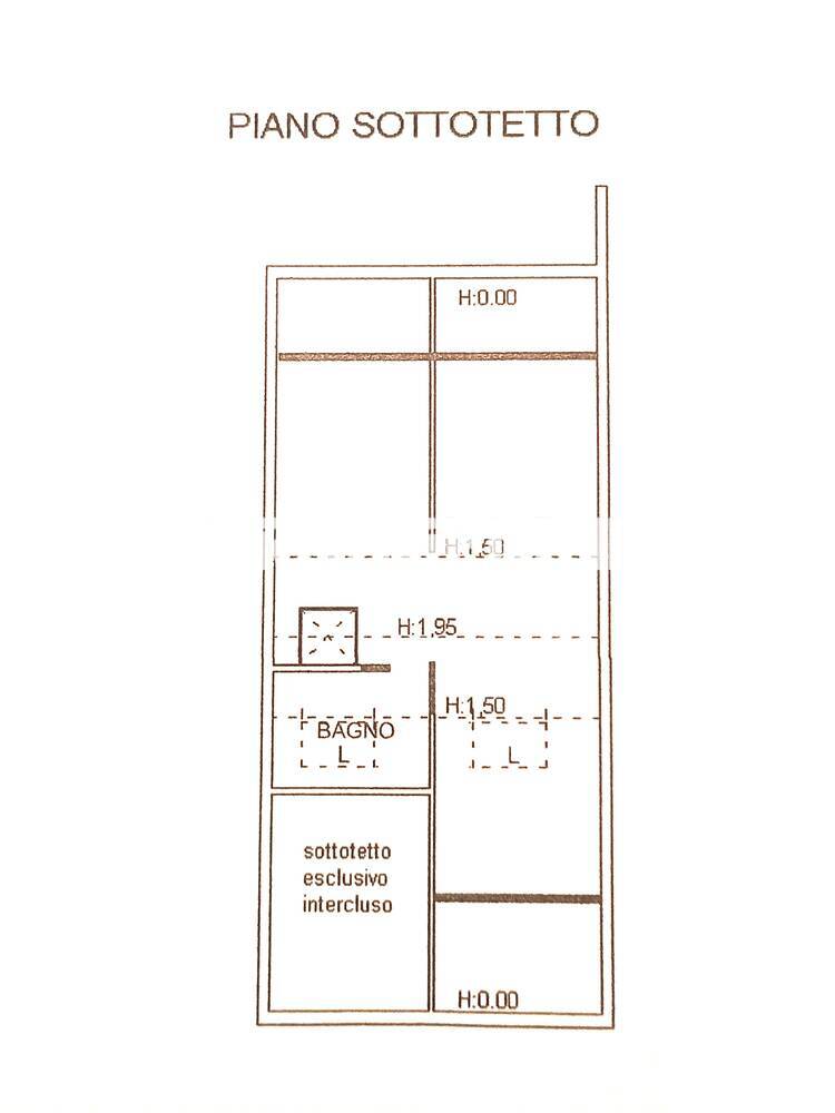
Rif. 4483 BANDITELLA IN ESCLUSIVA Palazzina libera su due lati con Giardino fronte/retro disposta su più livelli in perfette condizioni e rifinita con materiali di pregio, composta al piano terra da ingresso , cucina abitabile , ampia sala con caminetto e bagno. Al primo livello troviamo due camere matrimoniali di cui una con balcone e altro bagno finestrato. Mansarda uso studio con ulteriore bagno e taverna con locale lavanderia. Il riscaldamento è autonomo. Completa la proprietà un ampio GARAGE ed una cantina (classe E- ipe 110,24) La richiesta è di euro 495.000




2 bagni, 3 o più camere, Balconi, Cantina, Cucina, Garage, Giardino, Salone doppio, Termoautonomo.
 
 
Piano: terra/1
Superficie: 120 mq
Classe: G
Condominio: € 130,00
Prezzo: € 495.000,00


Torna alla ricerca Richiedi informazioni